VENDITA ULTIMO PIANO - OSPEDALE LIVORNO
Ospedale
codice riferimento: Rif.4495
Condividi
Condividi
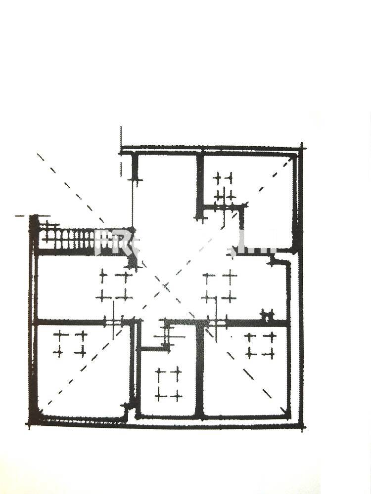
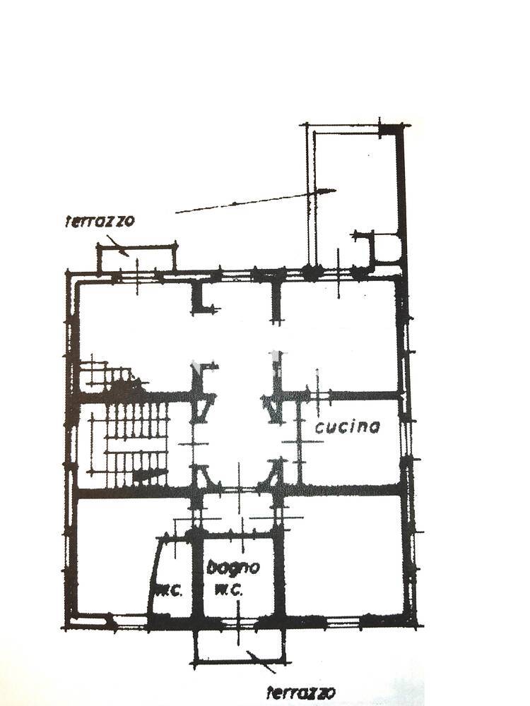
Rif. 4495 VIALE RISORGIMENTO CON GIARDINO E GARAGE - In ottima posizione residenziale, in contesto signorile, offriamo elegante primo piano di PALAZZINA con ingresso indipendente, servito da ampio GIARDINO privato e Passo Carrabile. L'appartamento si presenta molto spazioso, di circa 240 mq disposto su più livelli, in ottime condizioni. Al piano terra accesso al grazioso Giardino privato con piccola dependance e GARAGE di 21 mq. Al primo piano troviamo un grande ingresso, ampia sala con accesso a TERRAZZA e cucina abitabile, 2 CAMERE e doppi servizi. Al Piano mansardato ampi vani pluriuso. (Classe E - ipe 158,63) La richiesta è di euro 650.000
2 bagni, 2 camere, Balconi, Cucina, Garage, Giardino, Sala, Salone doppio, Termoautonomo, Terrazza abitabile, Ultimo piano.
| Piano: | 1/1 |
| Superficie: | 250 mq |
| Classe: | G |
| Prezzo: | € 650.000,00 |
Torna alla ricerca
Richiedi informazioni